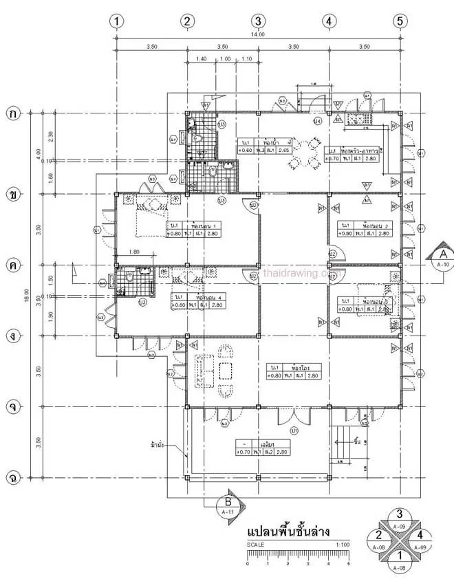
แบบบ้านสวยชั้นเดียว 4 ห้องนอน 3 ห้องน้ำ งบ 1.5 ล้าน
บ้านนั้นเป็นปัจจัยสำคัญจะสร้างทั้งทีมันก็ต้องโดนใจมีไอเดียแจ่มๆ กันบ้าง แต่วันนี้เรามีแบบบ้านชั้นเดียว ที่มาในสไตล์บ้านๆ แบบของบ้านเรามาฝากกันครับ มีชื่อว่า แบบบ้านเกษตรรุ่งเรือง ผลงานการออกแบบโดย เว็บไซต์ thaidrawing.com ใครกำลังจะสร้างบ้านที่บ้านนอกมาเอาไปใช้ได้เลย
ตัวบ้านเป็นโครงสร้างแบบชั้นเดียว สามารถเลือกใช้วีสดุได้ตามความต้องการของผู้สร้าง หลังคาเป็นแบบทรงหน้าจั่วที่เข้ากันดีกับบ้านเรา มีเฉลียงที่หน้าบ้านให้ร่มเงาทางเข้า ดูคุ้นตากันดี ตัวบ้านอยู่บนพื้นที่ใช้สอยขนาด 200 ตารางเมตร 4 ห้องนอน 3 ห้องน้ำ พร้อมด้วยห้องโถงขนาดใหญ่และห้องครัว ห้องรับประทานอาหารที่เป็นสัดส่วนลงตัว
ส่วนงบการก่อสร้างนั้นอยู่ที่ราวๆ 1.4 – 1.6 ล้านบาท สามารถปรับลดหรือเพิ่มได้ตามความต้องการของผู้สร้าง หรือการเลือกใช้วัสดุ เป็นแบบบ้านที่เข้ากันดีกับบรรยากาศในบ้านเรา ใครสนใจก็ลองเอาไปเป็นแบบบ้านของตัวเองได้เลยครับ
ขอบคุณที่มาจาก : thaidrawing
ความแตกต่างระหว่าง เบียร์ช้าง กับ เบียร์ลีโอ
เลขเด็ดม้าสีหมอก งวด 16 เม.ย. 69 มาแล้ว
5 ประเทศที่มี Soft Power ดึงดูดใจคนทั่วโลก ไทยถูกจัดอยู่ลำดับที่เท่าไหร่
5 อาชีพในไทย ที่ เงินเดือนเริ่มต้นสูง แบบงง ๆ บางงานเด็กจบใหม่ก็แตะ 30K+
ต้นไม้ที่ให้ร่มเงามากที่สุด 5 อันดับ
หนังเพียงเรื่องเดียวในไทย ที่ทำรายได้สูงกว่า 600 ล้านบาท
จังหวัดที่ “คนรวยเยอะที่สุดในไทย” ไม่ใช่ที่คุณคิดอันดับแรก
จังหวัดที่ “ร้อนที่สุดในไทย” อุณหภูมิพุ่งจนคนอยู่ไม่ไหว
คณะหมอลำที่โด่งดังที่สุด ประสบความสำเร็จมากที่สุดในไทย
นกหายากที่พบได้ที่เดียวบนโลก ในพื้นที่จังหวัดสระบุรีของไทย
3 นายก ที่มีอิทธิพลที่สุดในไทย
แบรนด์ไทย กลายเป็นสัญลักษณ์ความหรูหรา ในลาว
คณะหมอลำที่โด่งดังที่สุด ประสบความสำเร็จมากที่สุดในไทย
แนะนำ! เว็บไซต์ ai สามารถวาดรูป [l8+](สร้างฟรี) ผู้ใหญ่เท่านั้น



